 
                
Gortakeeran, Killtullagh, Athenry, Co. Galway
Gortakeeran, Killtullagh, Athenry, Co. Galway
Price
€95,000
Type
Detached House
Status
For Sale
BEDROOMS
5
BATHROOMS
3
Size
214sq. m
0.64 acres














Description
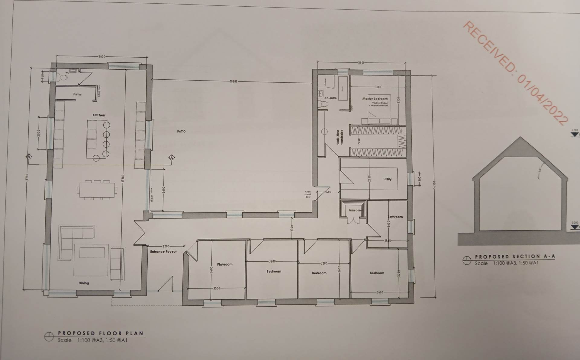
Farrell Auctioneers, Valuers & Estate Agents Ltd. are delighted to bring to the market this residential site with which extends to approx. 0.64 acres with Full Planning Permission located in the highly desirable location of Gortakeeran, whcih is on the outskirts of Killtullagh, Athenry, Co. Galway
The planning permission which was granted in July 2022 doesn`t expire until June 2027 and the permission is for a stunningly designed family home extending to approx. 2,303 sq.ft along with a domestic garage extending to approx. 45 sq. m, and a sewage treatment plant and percolation area along with ancillary works (22/60309). The planning permission is also not applicable to a housing need clause which makes it ideal for anyone who wishes to build their own dream house in the countryside.
The site is located in a peaceful country area less than 10 minutes from the M6 motorway at Kiltullagh with easy access to Athenry, Loughrea and Galway City. It is the ideal location for a family home as it is a short distance from a choice of Primary Schools at Brackloon and Kiltullagh with Post Primary at nearby Athenry. The local bar and Restaurant is just down the road with local amenities at Kiltullagh for your daily needs.
Features
- Approx. 0.64 Acre Site
- Full Planning Permission
- No Housing Need Clause
- Expires June 2027
- Approx. 10 minutes from M6 Motorway
- Close to Killtuallgh and local schools
